





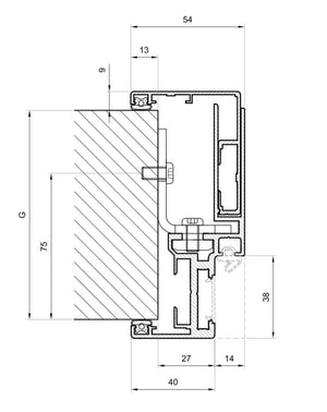
Frame Luoto – pariovi karmeilla on tyylikäs ja käytännöllinen ratkaisu, joka sopii niin uudiskohteisiin kuin saneeraukseen. Se on usein helppo asentaa vanhan oven tilalle – säädettävä karmi mukautuu eri seinäpaksuuksille (100–195 mm). Karmi jatkuu seinän päälle asti, joten erillisiä listoituksia ei välttämättä tarvita.
🇫🇮 Olet tilaamassa tuotteita maahan Suomi





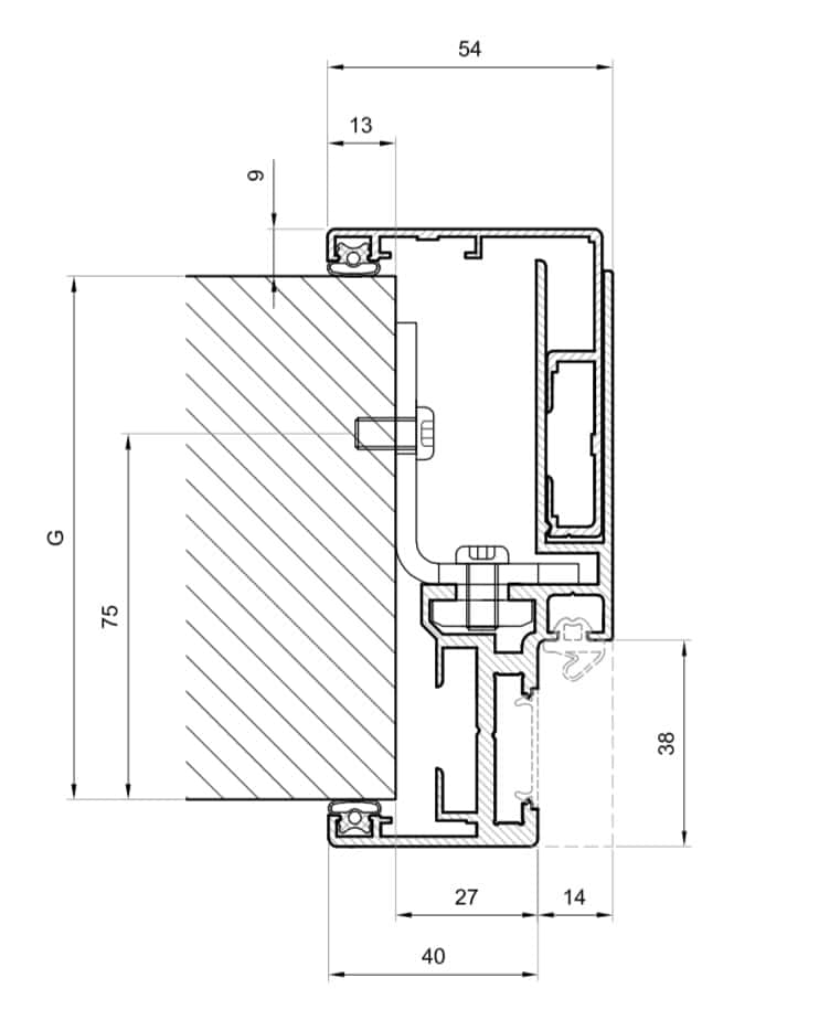
Frame Luoto – pariovi karmeilla on tyylikäs ja käytännöllinen ratkaisu, joka sopii niin uudiskohteisiin kuin saneeraukseen. Se on usein helppo asentaa vanhan oven tilalle – säädettävä karmi mukautuu eri seinäpaksuuksille (100–195 mm). Karmi jatkuu seinän päälle asti, joten erillisiä listoituksia ei välttämättä tarvita.
Helppo asentaa vanhan oven tilalle
Säädettävä karmi 100–195 mm seinäpaksuuksille
Ovet avautuvat 180° seinää vasten
Kehyksen väri mattamusta tai anodisoitu alumiini
Useita lasivärejä, myös raidallinen lasi
Mahdollisuus myös lukitukseen
Maksimikorkeus kapeilla ovilla jopa 3 m
Ovet avautuvat kokonaan, jopa 180° seinää vasten. Tiivisteet rungossa tuovat hieman äänieristystä, vaikka ovien väliin ja alle jää pieni rako.
Saatavana useilla lasiväreillä, mukaan lukien suosittu raidallinen lasi. Kehyksen väri on mattamusta tai anodisoitu alumiini. Värit takaavat ajattoman ja viimeistellyn ilmeen.
Ovet kiinnittyvät toisiinsa magneeteilla tai lukon valitessa toinen ovi kiinnittyy lattiaan/karmiin salvalla ja toinen puoli lukolla. Opastamme ja neuvomme sopivan ratkaisun valinnassa. Verkkokaupan hinta ei sisällä lukkoa.
Vedinvaihtoehdot
Pitkä vedin (kuvassa)
Pyöreä nuppivedin
Perinteinen kahva ja lukitus Abloy-lukkorungoille
Ovet sopivat 1000–1800 mm leveisiin aukkoihin, maksimikorkeus jopa 3000 mm (kapeat ovet).